DIEGO DE LEÓN
Residencial
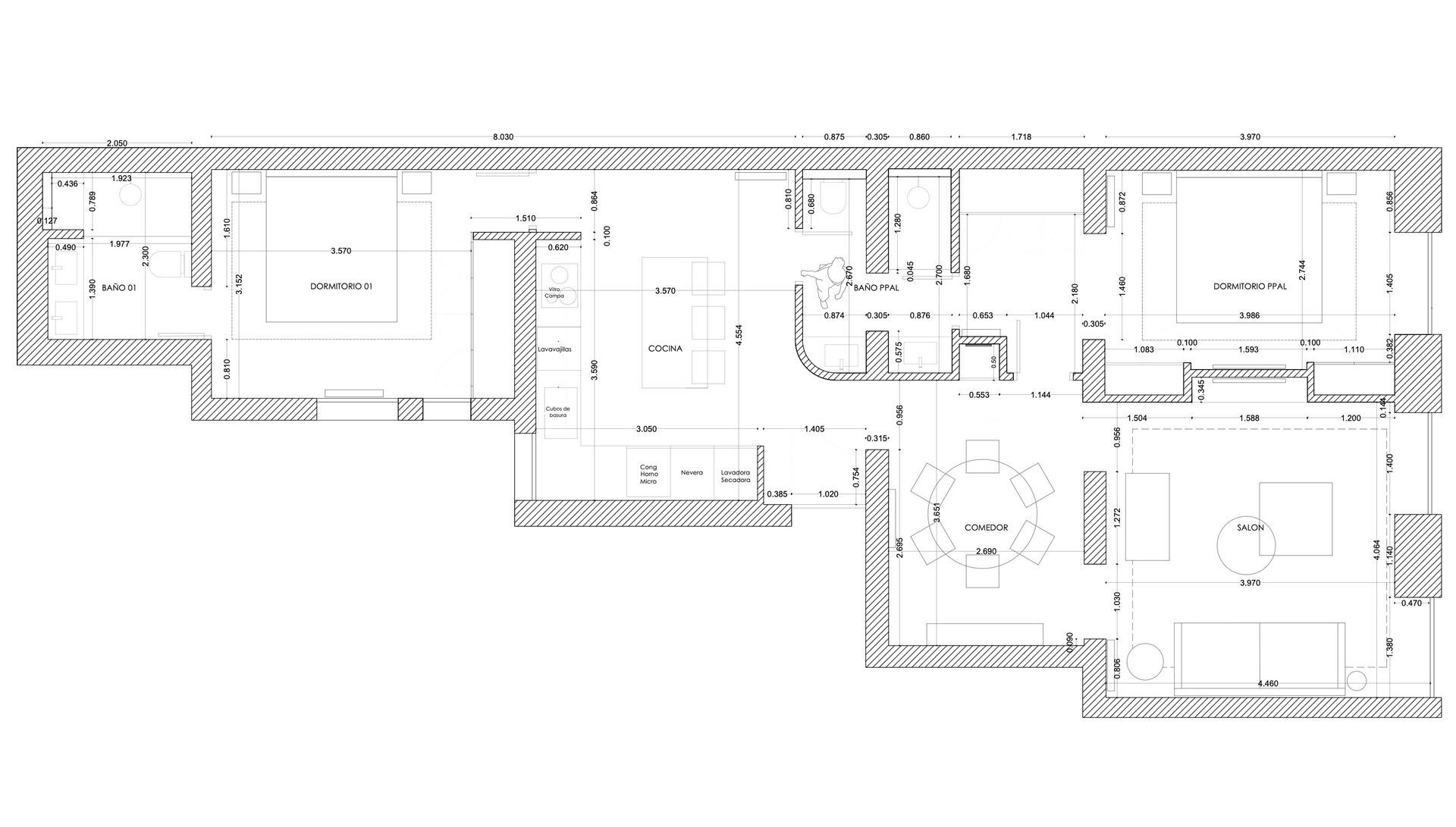
Proyecto de reforma en Diego de León
Un proyecto reciente en la Calle Diego de León, donde llevamos a cabo una reforma integral para dar nueva vida a esta vivienda.
Cada detalle se diseñó para optimizar los espacios, mejorar la circulación y adaptarla a un estilo de vida contemporáneo. La actualización de materiales y acabados, junto con una cuidadosa atención a la luz natural, dio lugar a un ambiente equilibrado, sereno y con carácter propio.
Hoy, este piso se presenta como un hogar sofisticado y acogedor, pensado para disfrutarse en una de las zonas más consolidadas y atractivas del barrio de Salamanca.






























