ORTEGA Y GASSET
Residencial
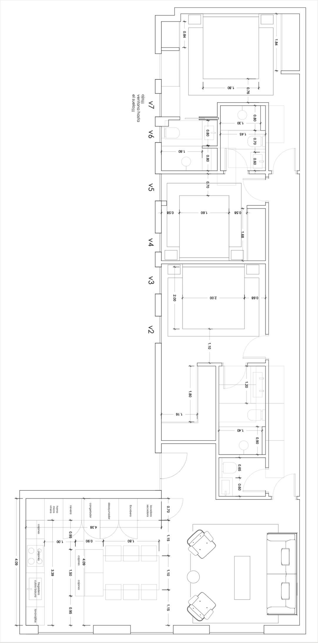
Proyecto de reforma integral en Ortega y Gasset
Un proyecto reciente en la Calle Ortega y Gasset, donde realizamos una reforma integral de esta vivienda pensada para el confort y la amplitud.
La nueva distribución dio lugar a tres dormitorios, tres baños y un aseo, organizados de forma equilibrada para ofrecer privacidad y funcionalidad. Los grandes ventanales bañan cada estancia de luz natural, reforzando la sensación de espacio y continuidad.
Hoy, este piso se presenta como un hogar luminoso y sofisticado, donde el diseño contemporáneo y la comodidad conviven en una de las direcciones más exclusivas de Madrid.






























